We offer a full range of drafting and engineering support services for the façade and glazing industry:
We provide expert façade consulting services from concept to construction. Our team helps identify the best system strategies, ensuring design intent, performance requirements, and constructibility are all met.

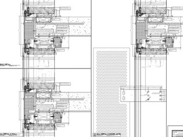
Our detailed shop drawings translate architectural intent into accurate, buildable plans. We ensure clarity and coordination for fabrication, installation, and review processes.

We assist in designing complete façade and curtain wall systems tailored to project-specific structural, thermal, and aesthetic needs—supporting everything from concept design through engineering.

We deliver precise fabrication drawings that guide production teams in manufacturing each element with accuracy. Our deliverables include cut lists, assembly details, and material breakdowns.

From head and sill conditions to anchor points and transitions, our curtain wall detailing ensures waterproofing integrity, structural compatibility, and aesthetic alignment.
We use cookies to analyze website traffic and optimize your website experience. By accepting our use of cookies, your data will be aggregated with all other user data.